Tư vấn thiết kế nhà 4 tầng hiện đại trên đất gần 30m2
Hỏi: Gia đình tôi đang có nhu cầu xây dựng ngôi nhà 4 tầng trên diện tích đất chưa đầy 30m2 (3.5x7.8 m) theo phong cách hiện đại. Phía trước nhà tôi là ngõ rộng 1,5m, từ tầng 2 có thể đua ra hết.
Yêu cầu:
Tầng 1: Bố trí bếp và nơi để xe. Thiết kế thêm tầng lửng làm phòng khách.
Tầng 2: Bố trí phòng ngủ lớn với nhà vệ sinh khép kín.
Tầng 3: Bố trí 2 phòng ngủ nhỏ có cửa sổ lấy sáng, 1 phòng vệ sinh chung.
Tầng 4: Bố trí phòng thờ, sân phơi.
Tôi muốn làm ban công phía trước nhà và phía sau nhà có khoảng thông tầng để đưa nắng và gió vào nhà. Rất mong nhận được phương án tư vấn thiết kế từ kiến trúc sư.
Kiến trúc sư tư vấn:
Từ những thông tin và yêu cầu như trên của chủ đầu tư, kiến trúc sư đã đưa ra phương án tư vấn thiết kế ngôi nhà 4 tầng trên diện tích gần 30m2 như sau:

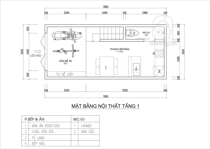
Bản thiết kế và bố trí không gian chức năng tầng 1

Bản thiết kế và bố trí không gian chức năng tầng lửng

Bản thiết kế và bố trí không gian chức năng tầng 2

Bản thiết kế và bố trí không gian chức năng tầng 3

Bản thiết kế và bố trí không gian chức năng tầng 4
Tầng 1: Bước qua cổng chính là khu vực để xe cho gia đình, có bố trí 1 tủ giày dép gọn gàng, giúp thuận tiện cho việc sinh hoạt. Kiểu cửa mở 4 cánh được lựa chọn nhằm tận dụng tối đa diện tích khu đất vốn nhỏ hẹp. Bước vào nhà là không gian bếp ăn tiện nghi. Phòng vệ sinh được thiết kế phía dưới gầm cầu thang, vừa thuận tiện, vừa sạch sẽ.
Tầng lửng: Bố trí phòng khách có thiết kế giếng trời, giúp không gian thêm phần thoáng sáng.
Tầng 2: Thiết kế phòng ngủ dành cho bố mẹ, có WC khép kín với đầy đủ đồ nội thất cơ bản.
Tầng 3: Thiết kế 2 phòng ngủ nhỏ cho 2 con với đồ nội thất cơ bản, được bố trí gọn gàng hợp lý.
Tầng 4: Thiết kế phòng thờ gia tiên phía trước, phía sau là sân phơi.
Dưới đây là một số hình ảnh phối cảnh 3D, giúp gia chủ hình dung rõ hơn về phương án tư vấn thiết kế nhà 4 tầng hiện đại mà KTS đưa ra:

Khu vực để xe máy được bố trí ngay phía trước nhà

Phòng bếp - ăn thiết kế nhỏ gọn, hiện đại với đầy đủ đồ nội thất tiện nghi

Nhà vệ sinh nhỏ được thiết kế phía dưới gầm cầu thang

Phòng khách thiết kế hiện đại, tinh tế với những món đồ nội thất cơ bản

Phòng ngủ của bố mẹ được thiết kế tiện nghi, thoáng sáng với khung cửa sổ kính bên phải giường ngủ

Nhà vệ sinh khép kín trong phòng ngủ lớn đầy đủ tiện nghi và thoáng sáng với thiết kế cửa sổ kính

Một trong 2 phòng ngủ của các con được thiết kế rộng hơn so với diện tích thực nhờ có cửa sổ lớn và
hệ lưu trữ thông minh ở phía thành giường

Nhà vệ sinh giữa 2 phòng ngủ của các con được thiết kế tối giản với đầy đủ tiện ích

Phòng thờ thiết kế với chất liệu gỗ màu trầm, tạo sự trang nghiêm cho không gian
- Quý khách tham khảo thêm các chuyên mục khác của X HOME:

CHIA SẺ & BÌNH LUẬN
Tweet